ホーム > 物件 > 売家 > 東山物件
物件詳細
公開:2025年11月21日|更新:2025年11月21日

東山物件

物件種別 売家
所在地 新庄市東谷地田町
最寄沿線/駅 JR奥羽本線 / 新庄駅
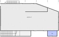
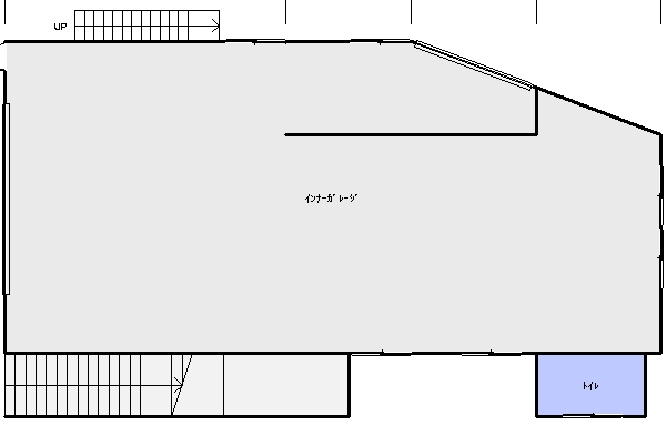
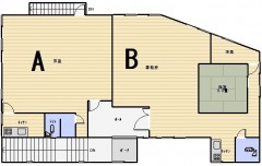
間取 お問い合わせください
構造 木造 (地上2階 建)
価格 9,800,000
敷金 - 礼金 -
共益費 - 管理費 -
駐車場有(空あり) 駐車場 詳細-
取引態様仲介 仲介手数料 -
入居状況 空室(即入居可) 築年月1972年5月
保証金 - 権利金 -
保険 - その他諸費用要相談
周辺環境
  • 日新小学校
  • 日新中学校
トイレ お問い合わせください
風呂 お問い合わせください
設備
特記事項
備考 現状引き渡し (1Fは賃貸中)

周辺地図

物件に関するお問い合わせ

お問い合わせ物件:
東山物件
お名前 ※必須
フリガナ ※必須
メールアドレス ※必須
ご住所
お電話番号
ご連絡方法  電話 メール 郵送 ※いずれか必須
入居希望時期  指定なし すぐに 3ヶ月以内 6ヶ月以内 いい物件があれば
お問い合わせ内容 ※必須

〒996-0078 山形県新庄市新町3-14
TEL:0233-23-3293
FAX:0233-23-3445

宅地建物取引業免許:
山形県知事免許(8)第1399号

※ご記入いただきましたお客様の個人情報につきましては、お問い合わせの目的以外には使用いたしません。
※メールでのお問い合わせは当社担当者が責任を持って確認いたしておりますが、返信には多少お時間、日数を要する場合もございます。
お急ぎのお客様は、営業時間内にお電話ください。